文/莫慧(天津市建筑设计研究院有限公司医疗院副院长)
前言
随着现代医学的发展,核医学在医院诊断和治疗中的应用越来越普便。为了更好的普及放射性污水处理的知识,从医院放射性污水的来源、水质及排放标准入手,通过对常用医院放射性污水处理工艺及其优缺点分析,接合实际工程案例分析,对医院放射性污水处理的优化设计进行探讨和总结。
目录
1 医院放射性污水的来源、水质及排放标准
1.1 医院放射性污水的来源
1.2 医院放射性污水水质
1.3 医院放射性污水排放标准
2 常用医院放射性污水处理工艺及其优缺点分析
2.1 连续衰变池
2.2 间歇式衰变池
3 实际工程案例分析
3.1 医院放射性污水系统水量计算
3.2 衰变池工艺优化
3.3 各类构筑物综合布置,优化空间利用率
3.4 总结
1、医院放射性污水的来源、水质及排放标准
1.1、医院放射性污水的来源
一般来说,医院放射性同位素污水的来源主要包括以下三方面:
1、在诊断和治疗过程中,病人服用放射性同位素后所产生的排泄物(70%的药物都是通过排泄排出体外的);
2、清洗病人服用的药杯、注射器和高强度放射性同位素分装时的移液管等器皿所产生的清洗水;
3、医用标记化合物制备(回旋加速器、热室)及倾倒多余剂量放射性同位素排放的放射性废水。
1.2、医院放射性污水水质
1、放射性污水的分类标准
根据国际原子能机构(IAEA)规定,放射性污水按照其放射性活度大小可以分为四级,见表1:
分级 | 放射性污水分类 | 放射性活度范围 |
第I级 | 弱放污水 | ≤3.7×102Bq/L |
第II级 | 低放污水 | 3.7×102Bq/L~3.7×105Bq/L |
第III级 | 中放污水 | 3.7×105Bq/L~3.7×109Bq/L |
第IV级 | 高放污水 | ≥3.7×109Bq/L |
2、医院放射性污水水质
根据2003年国家环保总局发布的《医院污水处理技术指南》相关规定:医院放射性污水的浓度范围为3.7×102Bq/L~3.7×105Bq/L,属于低放污水。
通常情况下,医院进行诊疗所采用的放射性核素,其特点是核素的半衰期一般比较短,毒性相对较低,并且放射性污水的排放量也较低,一般在0.2~5m3/d。各医院核医学科常用放射性核素有89Sr(锶)、99mTc(高锝)、131I(碘)、153Sm(钐)、32P(磷)、18F(氟)、125I(碘)等,产生的放射性污水都具有水量小、放射性核素含量较低以及污水中主要放射性核素半衰期较短等显著特点。
注:Bq是放射性活度单位,放射性元素每秒有一个原子发生衰变时,其放射性活度即为1贝可。
1.3、医院放射性污水排放标准
根据《医疗机构污染物排放标准》GB18466-2005规定,综合医疗机构和其他医疗机构,医院放射性污水污染物排放量限制(日均值):总α<1Bq/L,总β<10Bq/L。
根据《电离辐射防护和辐射源安全基本标准》GB18871-2002的排放要求:每月排放总活度<10ALImin(ALImin是相应于职业照射的食入和吸入值中的较小者),每次排放活度<1ALImin,并每次排放后用不少于3倍排放量的水进行冲洗。
2、常用医院放射性污水处理工艺及其优缺点分析
放射性污水的处理,从根本上讲,只能依靠自然衰变来降低以至消除其所含放射性核素的放射性,故其处理方法根本上来说无非是贮存和扩散两种。目前常用的处理方法主要有:化学沉淀法、离子交换法、膜分离法、蒸发浓缩法、吸附法以及贮存衰变法。
医院放射性污水主要用贮存衰变法。贮存衰变法是将放射性污水排入衰变池贮存一定时间(一般为污水中最长半衰期核素的10个半衰期),使污水中的放射性核素进行自然衰变,待污水的放射性指标达到国家管理限值时方可进行排放的一种方法。工程上主要有连续衰变池和间歇式衰变池两种形式。
2.1、连续衰变池
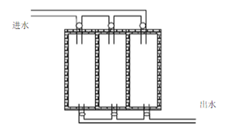
连续衰变池的进水和出水都是连续的,池内设置导流墙,推流式排放。衰变池设计总容积为最长半衰期同位素10个半衰期放射性废水总排水量。每一个均采用导流管,污水从池下部进入,上部排出,以防止短路,保证衰变效果。连续衰变池示意图间图1:
图1 连续衰变池示意图
连续流动式衰变池具有池容积小,占地面积小,造价较低,操作简单,不需或很少维护等优点。其缺点是抗冲击能力差,如果发生放射性物质泄漏等事故,污水中的放射性物质增加时,污水在衰变池中还未衰变到允许的排放浓度就不得不排放,会造成放射性污染事故。
2.2、间歇式衰变池
间歇式衰变池采用两个或多格式衰变池轮流收集并贮存医院放射性污水(并联切换),每格设计容积为最长半衰期核素数倍半衰期时间内产生放射性污水的排放量,待污水在池中经过衰变达到国家规定限制后,再排入周围环境中。间歇式衰变池示意图间图2:
图2 间歇式衰变池示意图
间歇式衰变池的优点是抗冲击能力强,出水水质稳定可靠,如果发生放射性物质泄漏等事故,污水中的放射性物质增加时,可以通过延时排放来延长污水在衰变池中停留时间,确保污水衰变到允许的排放浓度后排出,避免造成放射性污染事故。其缺点是衰变池容积较大,占地面积大,造价高,需要设控制阀门和水泵,控制相对复杂。
3、实际工程案例分析
医院项目由于使用人群的特殊性,在放射性污水处理工艺的选择上,应优先考虑安全性,因此,一般情况优先选择间歇式衰变池的处理工艺。前文已经提到,间歇式衰变池的主要缺点是:衰变池容积较大,占地面积大,本章主旨是如何减少衰变池的容积,并相应减少占地面积。下面,我们结合某医院实例对如何优化衰变池设计进行探讨。
3.1 医院放射性污水系统水量计算
要减少衰变池的容积及占地面积,我们首先需要考虑的是如何减少医院放射性污水系统水量,这是治本之法。医院放射性污水来源主要是核医学科病人所产生的粪便污水,而并非盥洗、淋浴废水。在确定放射性污水量时,除参照给排水规范及中水规范外,还要根据环评部门给出的指标进行校核。下面,我们通过某医院实例进行计算。
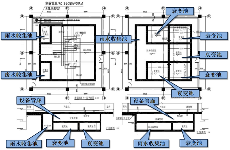
天津空港国际生物医学康复治疗中心位于天津市空港经济区规划的医疗卫生设施建设用地范围内,总建筑面积:134196平方米,其中地上建筑面积84140平方米,地下建筑面积50056平方米。建筑高度40.8米,地上九层,地下一层。
核医学诊疗部位于地下一层,核医学病房,围绕下沉广场设置,共有14间单人病房。
131I(碘131)主要用于治疗分化型(DTC)甲状腺癌,因为甲状腺癌细胞与原健康细胞一样具有吸收碘元素的能力。甲状腺癌患者在进行手术切除之后,给药高剂量的放射性碘药物会被体内残留或转移的甲状腺癌细胞吸收,通过放射性对甲状腺癌细胞进行杀伤。现已经成为了现场最常用的甲状腺癌术后治疗手段。
核医采用放射性药物为碘131,半衰期为8.3天,根据环评要求,放射性污水需在衰变池内停留超过10.5倍半衰期才能排放。
为减少放射性污水污水排放量,本工程核医学科14间单人病房采用污废分流的排水形式,只将粪便污水排入衰变池内。
计算过程如下:
单人病房生活用水定额取250L/床·d,冲厕用水比例按14%考虑,则冲厕用水定额取35L/床·d,单人病房一共14间,则
粪便污水日排放量Qd=35×14=490L/d;
碘131半衰期为8.3天,10.5倍半衰期为87.15天;
则10.5倍半衰期粪便污水排放量Q=87.15×490=42703.5L,即42.7m3。
现将污废合流与污废分流两种排水方式的计算结果做一个对比,详下表:
排水方式 | 用水项目 | 用水定额 | 用水单位数量 | 最高日排水量(m3/d) | 10.5倍半衰期排水量(m3) | |
污废合流 | 病房 | 250 | L/床位·日 | 14 | 3.50 | 305.03 |
污废分流 | 病房 | 35 | L/病人·次 | 14 | 0.49 | 42.70 |
通过对比,污废分流放射性污水排水量仅为污废合流放射性污水排水量的14%,大大减少了衰变池的储水容积。
3.2 衰变池工艺优化
常规的间歇式衰变池采用3格衰变池的系统比较多,因为其相对控制简单一些。按照3格衰变池进行计算,我们可以得到衰变池的总容积。计算过程如下:
衰变池采用轮流收集贮存,轮流排放的形式。即放射性污水经化粪池处理后,先排入第一格衰变池,待满后关闭,启用第二格,让第一格池内污水自行衰变;待第二格满后,再启用第三格;待第三格快满时,第一格池内污水停留时间已满足10.5倍半衰期,可开启第一格半衰池排放污水。则每格衰变池容量应为10.5倍半衰期粪便污水排放量的50%。
即每格衰变池的容积V1=42.7×50%=21.35m3;
则3格衰变池的总容积V2=21.35×3=64.05m3。
本工程采用5格衰变池,放射性污水经化粪池处理后,先排入第一格衰变池,待满后关闭,启用第二格,让第一格池内污水自行衰变;待第二格满后,再启用第三格;以此类推,当第五格衰变池快满时,第一格池内污水停留时间已满足10.5倍半衰期,可开启第一格半衰池排放污水。则每格衰变池容量应为10.5倍半衰期粪便污水排放量的25%。
即每格半衰池的容积V3=42.7×25%=10.68m3;
则5格衰变池的总容积V4=10.68×5=53.4m3。
从上述计算可以看出,5格衰变池较3格衰变池的总容积减少了1/6,从而使占地面积更小。
以此类推,间歇式半衰池的格数越多,总容积则越小,假设10.5倍半衰期粪便污水排放量为V,衰变池格数为n,则每格的容积应为V/(n-1),3~10格半衰池的每格容积及总容积详表2:
表2 不同格数对应的半衰池的每格容积及总容积对照表
格数 | 每格容积 | 总容积 |
3 | 0.5V | 1.5V |
4 | 0.334V | 1.336V |
5 | 0.25V | 1.25V |
6 | 0.2V | 1.2V |
7 | 0.167V | 1.169V |
8 | 0.143V | 1.144V |
9 | 0.125V | 1.125V |
10 | 0.112V | 1.12V |
我们可以从表2中看到,随着格数的增加,总容积越来越小,但是明显呈现一种边界递减效应。通过与结构专业的共同探讨,从可行性及经济性角度进行对比,本工程最终确定采用5格衰变池的方案。
3.3 各类构筑物综合布置,优化空间利用率
由于本工程衰变池只能在下沉广场区域设置,还需同时考虑生活废水及雨水调峰收集池设置,于是本工程降化粪池、雨水调峰收集池、衰变池进行了综合布置,分为上下两层。地下一层为化粪池及设备管廊,局部为雨水调峰收集池上部;地下二层为衰变池及雨水调峰收集池。管道及提升设备与衰变池立体布置便于化粪池(降解池)的出水通过重力流向各衰变池。管道设于设备管廊内,便于安装及维修。提升泵采用立式排污泵,设于管廊内,避免采用潜污泵提升放射性污水。边角的空间通过布置雨水收集池得到了最大的利用。
综合考虑污、废、雨系统设置位置,最大限度的合理利用空间。
3.4 总结
综上所述,在本工程中,我们通过以下3条措施,减少了衰变池的容积及占地面积,同时增加了空间利用率:
1)通过增加衰变池的数量,将衰变池总容积缩小1/6,以更合理的利用空间,同时减少局部基础埋深,及基础维护结构造价。
2)通过创新的立体布置,使空间的利用更高效,安装与维修更便捷,使用更安全。
3)从医院的整体考虑,利用一体化设计的思路,将废水收集池、衰变池等构筑物与化粪池、雨水收集池等构筑物综合布置,进行有机的结合,最大化的利用了空间。
相关资讯
-
DPI 880多功能过程信号校验仪:工业现场的高效…
2025.07.23 -
SkyScan P5-3型手持式闪电探测器产品应用
2025.06.12 -
CAL 3200简易PID温度控制器在工业流程中的应用…
2023.11.07 -
R.M.YOUNG三维超声风速仪81000在内蒙古荒漠化防…
2023.09.15 -
Boltwood Cloud Sensor III云传感器的应用及性…
2023.04.10 -
医院放射性污水处理优化设计
2022.06.22 -
建筑材料装修材料放射性检测方案
2022.06.21 -
“数字哨兵”健康核验一体机
2022.04.13 -
辐射安全管理制度(岗位职责、监测方案、使用登…
2022.03.03 -
碘 131 介绍
2022.02.28

